Meuble 1 tiroir, charnières à gauche, 1 étagère intérieure, compatible avec lave-mains 815301, poignées en aluminium noir
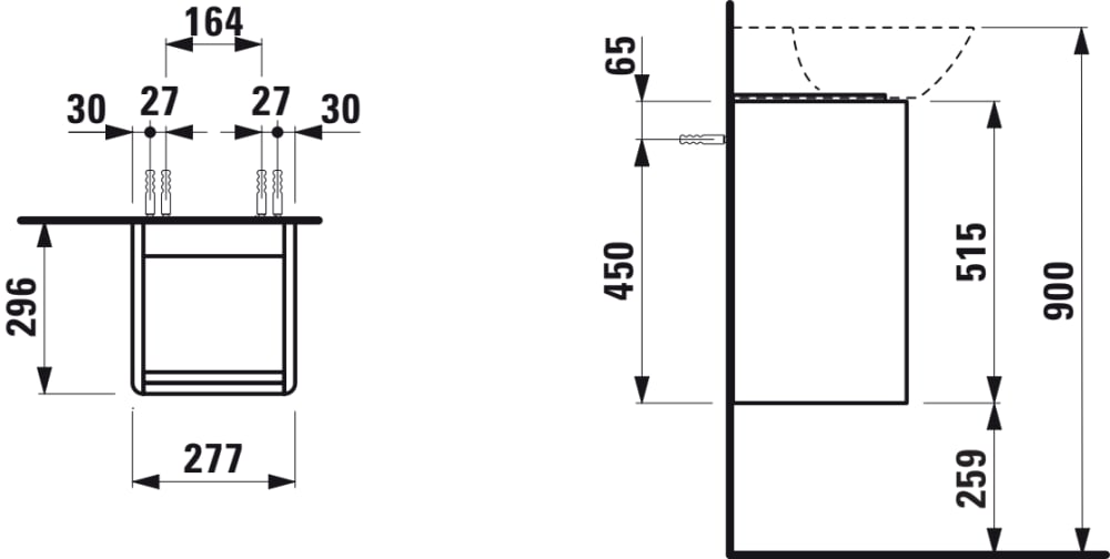
Dimensions: 275 x 295 x 515 mm (longueur, largeur, hauteur)
- Poids net / kg: 9.5

Les tailles indiquées sur les schémas techniques ci-contre sont données en mm.


Livraison
La livraison est réalisée sur rendez-vous. Le transporteur ne se déplacera jamais sans rendez-vous. Il n'y a donc aucun risque qu'il tente de vous livrer alors que vous êtes absent.
Le camion se déplacera avec les outils de manutention nécessaire afin de vous livrer au bord de la route. Les chauffeurs ne sont pas habilités, et ne sont en aucun cas tenu de vous livrer de la marchandise à l'intérieur de votre domicile ou dans votre propriété.
Les commandes contenant du carrelage sont préparées sur palette avec la plus grande attention et les plus grands soins dans le but d'écarter au maximum les risques de casse durant le transport.
Cependant, il peut arriver qu'il y ait de la casse durant le transport.
Afin que nous puissions procéder à l'échange des marchandises endommagées sous les plus brefs délais, il faudra cependant que vous ayez notifié la casse sur le bordereau de livraison.
Vous disposez de 15 minutes par palette afin de vérifier l'état de la marchandise reçue.
Vous trouverez sur la page dédiée aux livraisons, tous les conseils pour réceptionner votre commande dans les meilleures conditions.

Découvrez les autres produits qui composent la collection Base
Voir toute la collection
